自立の方向けサービス付き高齢者向け住宅
「ひろばの家・那須1」
高齢期の暮らしに「安心の仕組み」がある家
「ひろばの家・那須1」の2期が着工いたしました。2025年2月竣工(予定)には、新たに32戸が加わります。
高齢期の暮らしを自由に心豊かに暮らすには、心許せる人や物に囲まれて、ほどよいつながりと支え合いを保つ「仕組み」が必要です。
- 365日スタッフが常駐
- ペットと暮らせます。
- 毎日の安否確認
- 緊急時の対応
- 入退院時の同行
- 送迎車(9人乗り)は毎日3便あります。
「ひろばの家・那須1」の魅力
① 住まい・食・文化的生活のある暮らし
元校舎には、コミュニティカフェ、マルシェをはじめ、アート、音楽、趣味の活動の機会も。自由で自立した安心できる時を刻んでいけます。

食事は自炊でもカフェでも。

眺望のいい2階建ても。
長年大事にしてきた、
好きな物だけに囲まれた暮らし。

現役でお仕事を続けている方も。

有機農法を中心とした地元野菜や、
自然食品もお求めになれます。

入居者の365日の食事を提供。
カフェメニューもあり、
急な訪問客にも対応できます。

排水の悪かった元校庭を緑の土地へと
改善しました。
② 心身の変化に応じた安心のある暮らし
365日24時間の緊急対応で、住み慣れた「ひろばの家・那須1」で最期まで過ごすことを基本に、生活コーディネーターが日常生活をサポートします。敷地内には「あい・デイサービス那須」や、介護の方向けの「ひろばの家・那須2」(定期巡回・随時対応型訪問看護と訪問介護を提供)などがあり、状況によってご選択いただけます。


③ 「参加型」で育まれる支え合いのある暮らし
〈那須まちづくり広場〉は一人静かに過ごしたい人の自由もあり、困ったときは、知恵を出して解決をしていく。共に暮らしあうことが豊かな新しい生活をはぐくみます。


建物概要
開設日2023年1月30日(49戸)、2025年1月30日(32戸)
| ハウス名 | ひろばの家・那須1 |
|---|---|
| 住所 | 栃木県那須郡那須町豊原丙1340 |
| 類型 | サービス付き高齢者向け住宅 |
| 交通 | JR東北本線「黒田原」駅から車で9分 JR東北新幹線「新白河」駅から車で18分 那須スマートICから車で7分 |
| 構造規模 | 木造1階建て、一部2階建て/フロント、共用室 |
| 総戸数 | 81タイプ |
| 間取りと広さ | 11種1R~2LDK、29.16㎡(8.8坪)~66.25㎡(20坪) |
| 居室のタイプ | 45タイプ |
| 住宅の設備 | 床は杉のむく板、キッチン1800㎜(コンロはIH)・風呂・トイレ・洗面化粧台・洗濯機置き場、給湯はプロパン |
| 保証人 | 1名必要(お2人入居の場合は相互も可) |
| 送迎関係 | ①NPOワーカーズ・コレクティブ「ま〜る」にご入会後、 ワゴン車「ひろばGO!」での送迎。1日4便、曜日により 那須町町内、白河、黒磯方面に運行。 ②町民になると那須町の運営する「那須町デマンド型乗合交通」にも利用者 登録し利用でる。 ③新規原稿入ります〓〓〓 ④ボランティアグループが運営する「那須まちづくりの会」の 「あさひ倶楽部」の相互扶助もある。 |
| 土地・建物 | 土地:那須町から賃借、建物:自己所有 |
部屋の間取りと価格

29.57㎡(9坪) 1,390〜1,440万

33.12㎡(10坪) 1,450〜1,530万円

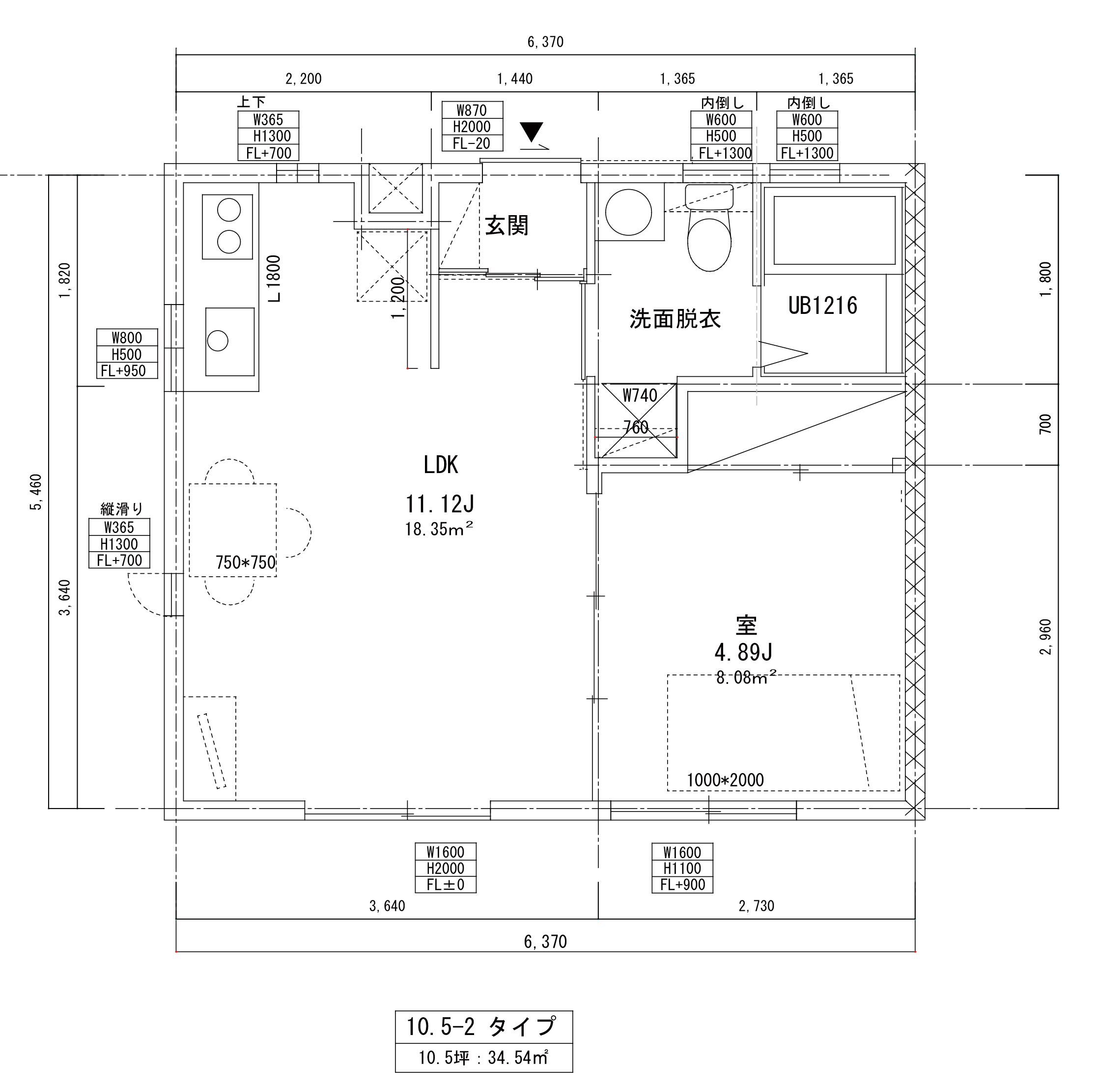
34.54㎡(10.5坪) 1650~1730万円

39.50㎡(12.0坪) 1,920万円

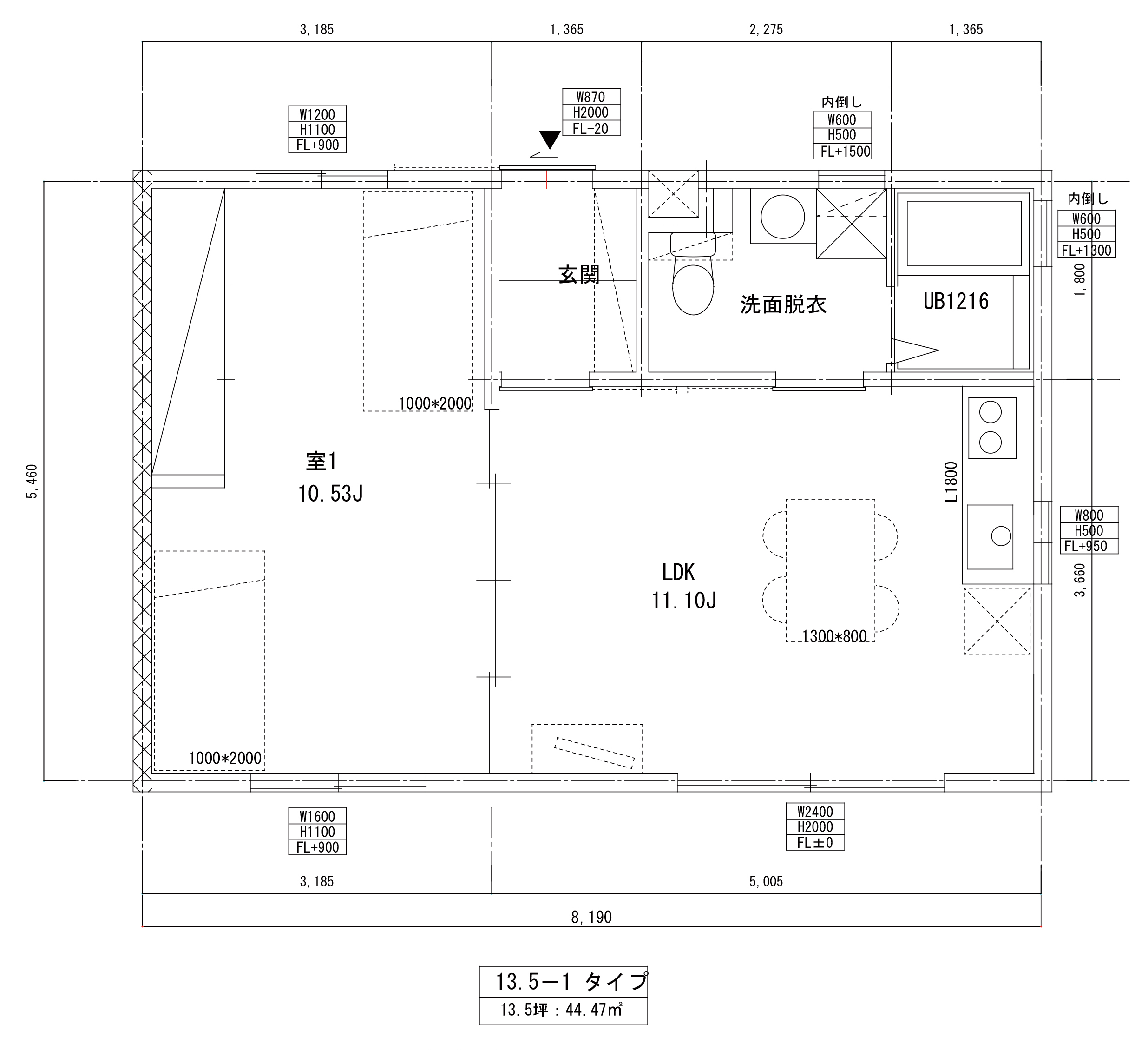
44.47㎡(13.5坪) 2,160万円

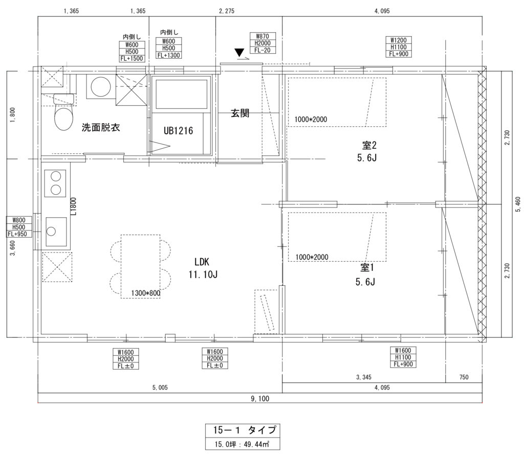
49.44㎡(15坪) 2,400万円

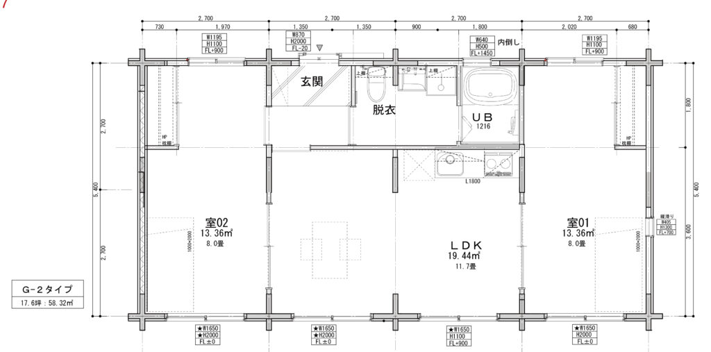
58.32㎡(17.6坪) 2,640万円

66.75㎡(20坪) 3,020万円
入居時の価格
終身にわたる家賃の全部前払い金1,347万円~3,170万円
15年分の家賃を前払い頂くことにより、16年以降の家賃は不要です。
返還金制度あり。15年以内は日割りで返金。
返還金は預金保険機構で保全します。 敷金は賃料の2か月分(終身にわたる家賃の全額前払い金の2/180となります)
月々の費用
| 共益費 | 8,000円/月(非課税) |
|---|---|
| サポート費 | お一人入居 33,000円 お二人入居 49,500円(税込) |
| 駐車場 | 月額3300円(税込) 保証金3000円 |
| 食費 | 朝食550円、昼食550円、夕食770円(税込) ・いずれも予約制 |
お申し込み・お問い合わせ
【那須まちづくり株式会社】
0287-74-3434






